
Цель проекта: Создать многофункциональное, гармоничное общественное пространство, кафе с элементами самообслуживания, обладающее узнаваемыми чертами уютной французской пекарни. Следовательно, было решено использовать следующие приемы.
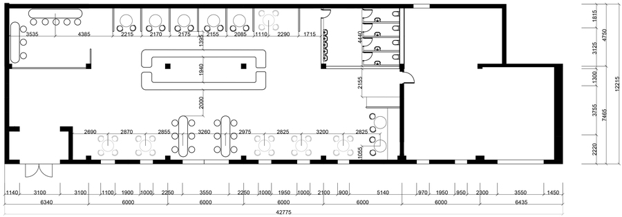
Архитектурная основа кафе представляет собой объем общей площадью 454 М2. Высота потолков 4500 мм. В помещении находятся 6 высоких окна в пол. Также в помещении присутствуют несущие колонны шириной 380 мм. Наружные стены шириной 510 мм. Стояки систем водоснабжения и вентиляции располагаются слева от кухни. В помещении присутствуют несущие стены и перегородки.

План расстановки мебели и оборудования
В данном проекте главную роль играет зона обеденного зала. Обеденный зал разделен на две зоны: зона долгого пребывания, зона быстрого питания. В обеденном зале расположились четыре вида столов: круглый стол со стульями на 4 персоны, три барные стойки с барными стульями на 3 персоны, круглый стол на 4 персоны, с одной стороны со стульями, с другой с диванами и барная стойка на компанию из 5 человек. В центре обеденного зала расположена линия раздачи с кассами и со стойкой самообслуживания.


Мудборды
Французский стиль восхищает оригинальным декором и совершенным исполнением каждой детали интерьера. Атмосфера комфорта и домашнего тепла является его характерной особенностью. Горячий дуэт античности и современных деталей. Интерьерам во Франции присущ историзм. Французы любят вещи с историей, бережно хранят их и искусно миксуют с современными предметами интерьера. Эффектный тандем изящества и простоты.
Зона долгого пребывания
Зона быстрого питания
Общий вид на линию раздачи и обеденную зону
Вид на кассы
Зона долгого пребывания
Развертка 1
Развертка 2
Графическая подача проекта