Ресторан «Явъ» представляет собой сочетание нескольких культур, объединённых общей идеей природности и возвращению к предкам. Текстуры, оттенки и натуральные материалы выражают всю концепцию проекта и поддерживают общее настроение таинственности, загодочности, камерности.
Исходный размер 2200x1047
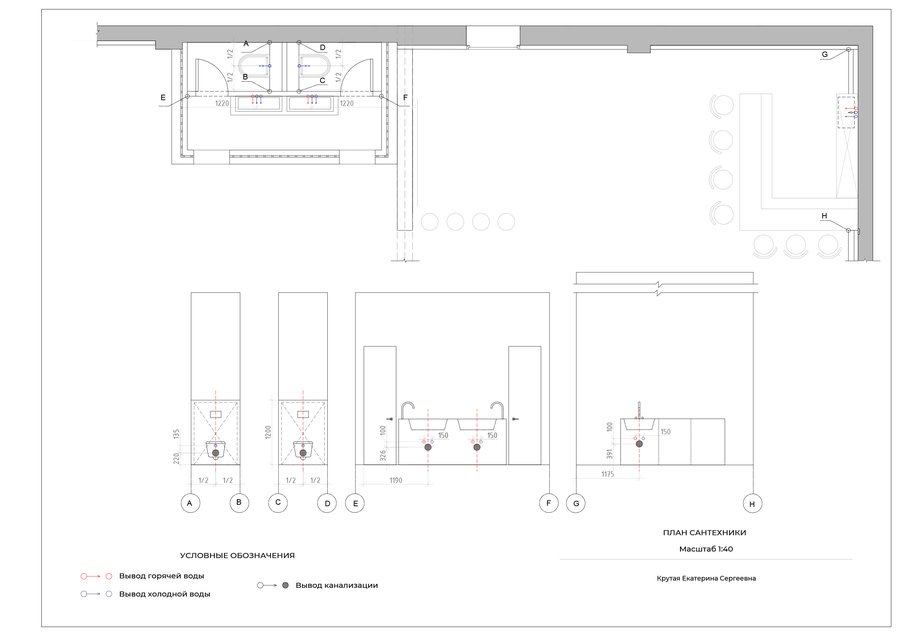
Исходный размер 2631x1860
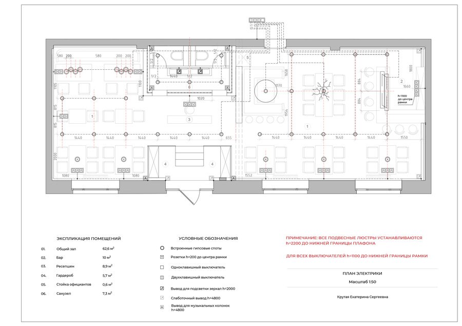
Исходный размер 2631x1860
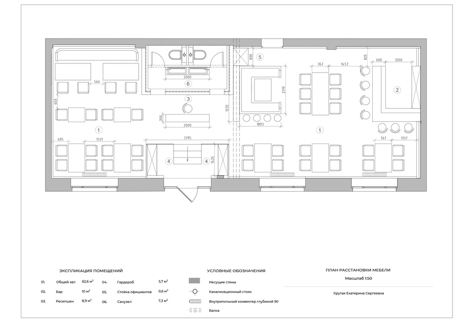
Исходный размер 2631x1860
Исходный размер 2631x1860




