
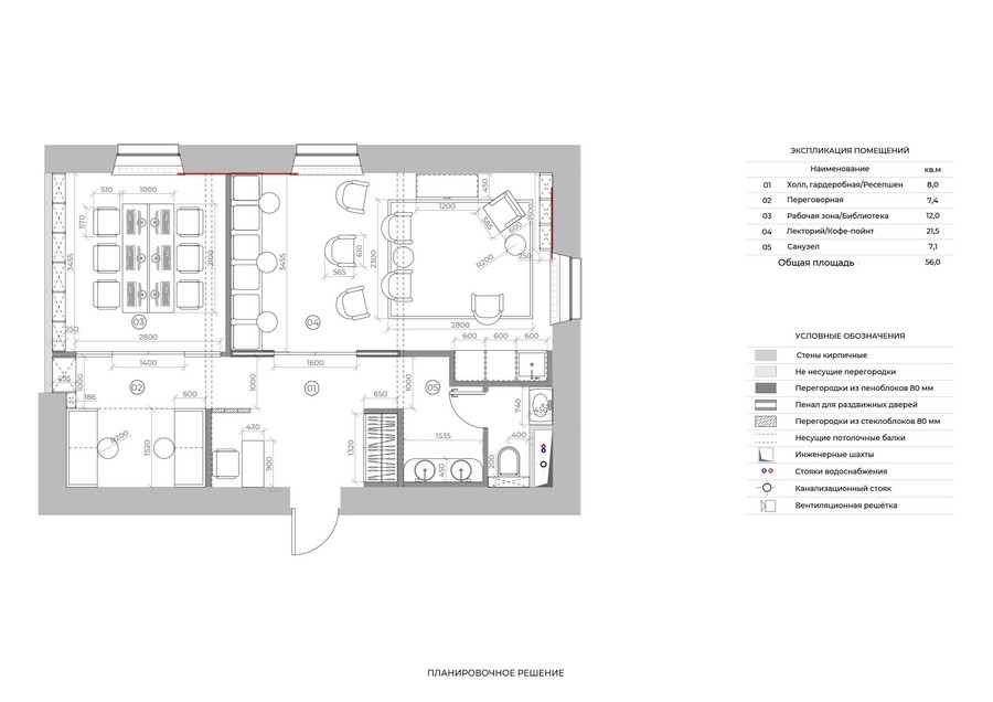
Литературный клуб «Юность» ориентирован на студентов и выпускников факультета журналистики ведущих вузов Москвы, начинающих писателей, журналистов и деятелей в области современной литературы. Это дискуссионная площадка, место для проведения встреч с писателями и журналистами. Дизайн пропитан духом начала 60-х. Основные черты: лаконичность, простота и функциональность.

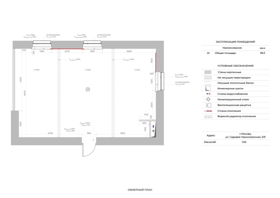
Общая площадь помещения 58,3 кв. м. Здание 1957 года постройки. При проектировании необходимо было разместить следующие функциональные зоны: лекторий, рабочие места с ПК, переговорные, библиотеку, кофе-пойнт, ресепшен, гардеробную, санузел.
При планировании основными аспектами были: конфигурация пространства, габариты помещений, их расположение относительно друг друга, высота потолков, форма стен и расположение окон.
