

КОНЦЕПЦИЯ
Лейтмотивом пространства является функциональность. Разработанная мебель имеет модульную систему, то есть кратна 15 см.
Мне хотелось создать уютную атмосферу, по этой причине в интерьере визуально используется дерево. Тем не менее, далеко не везде дерево является таковым. Например, покрытие пола выполнено из керамогранита.
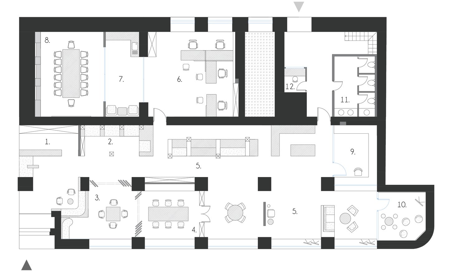
ПЛАНИРОВОЧНОЕ РЕШЕНИЕ

1. Ресепшен 2. Зона ожидания 3. Мини-коворкинг 4. Большой коворкинг 5. Торговый зал 6. Офис 7. Зона отдыха для персонала 8. Переговорная 9. Техническое помещение 10. Детская 11. С/У 12. Охрана
ВХОДНАЯ ГРУППА
Зона ресепшена и ожидания
ШОУРУМ
Вслед за диванами начинается торговое пространство. На колоннах согласно задумке располагаются образцы. В этой же части можно пройти к коворкингу.
Поскольку ключевое направление Италики — штукатурка и декоративные покрытия, в интерьере предусмотрены сменные экспозиции.
Зона ожидания, коворкинг
Интерьер наполнен предметами в стиле mid-century modern, что является отсылкой к «классике» предметного дизайна. Решение продумано с рассмотрением возможности сотрудничества с другими брендами и интегрированием продукции в различные интерьеры.
КОВОРКИНГ
Вид на несколько зон: мини-коворкинг, большой коворкинг, зона ожидания и начало торговой зоны
С левой стороны в большом коворкинге расположены светильники. Согласно задумке, в этой зоне дизайнеры могут настраивать температуру света с помощью пульта.
Большой коворкинг
Таким образом, у посетителей и сотрудников шоурума будет возможность делать фото с образцами под различным освещением и исходя из этого подбирать подходящий материал и оттенок.
ОФИСНОЕ ПРОСТРАНСТВО
Офисное пространство продолжает тему декоративных материалов. Так мной был разработан комод, сочетающий в себе несколько материалов — штукатурка, дерево, металл.
Офис
Таким образом, я показываю, что штукатурка может быть интегрирована в самые разнообразные решения.
Офис
Переговорная и зона отдыха для персонала
Офисное пространство сочетает в себе 3 зоны: офисы, зона отдыха для персонала и переговорная.
Переговорная
АЛЬБОМ ЧЕРТЕЖЕЙ