
Проект предполагает создание летнего фестиваля камерной музыки в городе Чайковский, носящем имя великого русского композитора. Фестиваль актуализирует наследие русской классической музыки в новом ключе в тихой живописной местности. Пространство фестиваля становится местом синтеза — где архитектура, музыка и природа создают единый художественный язык.


«Я еще не встречал человека, более меня влюбленного в матушку Русь. Я страстно люблю русского человека, русскую речь, русский склад ума, русскую красоту лиц, русские обычаи, — писал Чайковский, — Что касается вообще русского элемента в моей музыке, то есть родственных с народной песнью приемов в мелодии и гармонии, то это происходит вследствие того, что я вырос в глуши, с детства самого раннего проникся неизъяснимой красотой характеристических черт русской народной музыки, что я до страсти люблю русский элемент во всех его проявлениях, что, одним словом, я русский в полнейшем смысле этого слова»

г. Чайковский основан в 1955 году, статус города получил в 1962 году.

Место проектирования
Исторические фотографии здания кинотеатра «Горизонт» 1 — около конца 1970-х годов, 2 — 2004 год, 3 — 2007 год
Фотофиксации здания, январь 2025 года


Проектное предложение
Фестиваль камерной музыки предполагает ряд развлекательных событий в летний сезон. Мероприятия фестиваля организуются на двух площадках: закрытой и открытой.
Цель фестиваля: посмотреть по-новому на русскую классику.
У посетителей фестиваля есть возможность прослушать образовательные лекции, ознакомиться с современными исполнителями, которые создают свою музыку на классических принципах построения гармонии и виртуозно создающие новые вариации исполнения.
Автограф «Колыбельной песни» П. И. Чайковского, 1893 год. Фото — Sotheby’s
Формообразование генплана
Генеральный план
Общий вид на территорию проектирования
Фасады здания: восточный, лицевой, западный
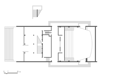
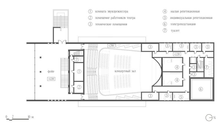
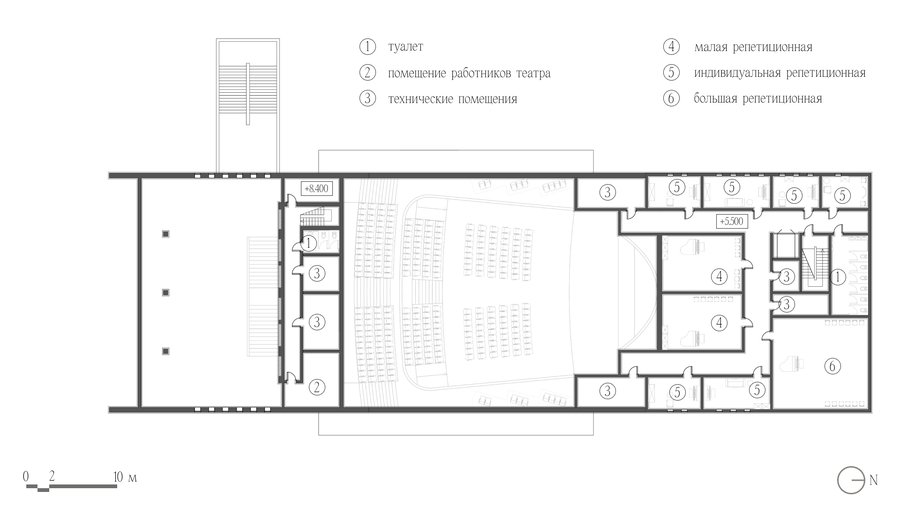
Паны здания театра: -1 этаж, 1 этаж, 2 этаж, 3 этаж
Разрез здания
Вестибюль
Фойе
Общий разрез концертного зала
Арт-объект «Нота ми»
Музыкальный спуск к воде
Окончание спуска, арт-объект «Нота си»
Сцена на воде