

Визуализация проекта. Фасад
Таунхаус располагается в Нью-Йорке — мегаполисе, который предлагает бесконечные возможности для карьерного роста, активного образа жизни и наслаждения всеми прелестями большого города.
Площадь помещений: 285.6 м² Количество этажей: 3
ПОРТРЕТ ЖИТЕЛЬНИЦЫ
Интерьер таунхауса разработан для девушки-редактора модного журнала, поэтому он функциональный, стильный и способствует расслаблению и отдыху, обеспечивая ей возможность отвлечься от повседневных забот и насладиться уютной обстановкой своего дома после насыщенного дня на работе.

ФАСАД ТАУНХАУСА


Визуализация проекта. Задний двор и вид на обратную сторону таунхауса
Визуализация проекта. Вид на обратную сторону таунхауса
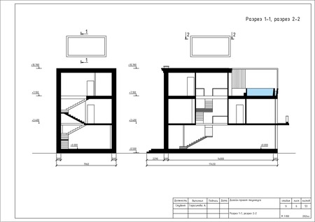
ЧЕРТЕЖИ И РАЗРЕЗЫ К ФАСАДУ


ИНТЕРЬЕР
Визуализация проекта. Гостиная


Визуализации проекта. Столовая и кухня
Визуализация проекта. Гостиная
Визуализация проекта. Мастер-спальня
ПЛАН ВОЗВОДИМЫХ ПЕРЕГОРОДОК
ПЛАНИРОВКА ТАУНХАУСА
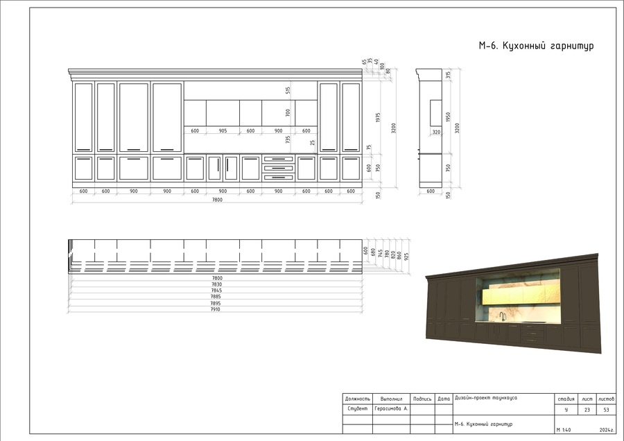
СПЕЦИФИКАЦИИ И ЧЕРТЕЖИ МЕБЕЛИ ИНДИВИДУАЛЬНОГО ИЗГОТОВЛЕНИЯ
ПЛАНЫ ОТДЕЛКИ ПОЛОВ, ПОТОЛКОВ И СТЕН
ПЛАНЫ РАЗМЕЩЕНИЯ ОСВЕТИТЕЛЬНОГО, СИЛОВОГО И СЛАБОТОЧНОГО ОБОРУДОВАНИЯ
РАЗВЕРТКИ КУХНИ, МАСТЕР-СПАЛЬНИ И МАСТЕР-САНУЗЛА