
Реновация — это путь в будущее…
Улица Челюскинцев находится в историческом центре Тюмени. Она имеет богатую и долгую историю. На ней располагаются примеры деревянной застройки к. XIX — н. XX вв., занесенные в реестр охраняемых памятников архитектуры. Здесь находятся такие культурные центры притяжения, как Центр Творчества и Спорта (Дом пионеров) и Тюменская Филармония. Можно найти гостиницы, магазины, места общественного питания и другие объекты инфраструктуры. Но несмотря на все достоинства, улица имеет ряд недостатков, требует реновации и поиска современных решений в создании среды и архитектуры новых объектов.


В предпроектной части был проведен анализ рассматриваемой территории застройки

Концепция реновации ул. Челюскинцев
Фрагменты концепции генерального плана реновации среды
Тюмень преображается с каждым днем, в городе появляется всё больше стильных и современных локаций для молодежи. Такие места собирают людей по интересам и являются фундаментом для реализации творческих способностей. Сейчас в городе открываются арт-центры на основе музеев, обновляются старые культурные центры, существуют узконаправленные и разноплановые пространства. Улица Челюскинцев за счет своего размещения и наполнения смогла бы стать местом размещения крупной арт-резиденции, центром искусства в городе и не только.
Генплан территории проектирования арт-резиденции
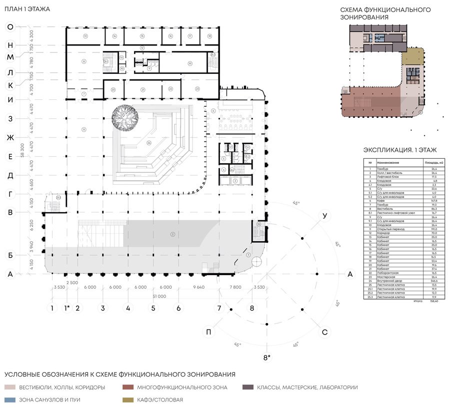
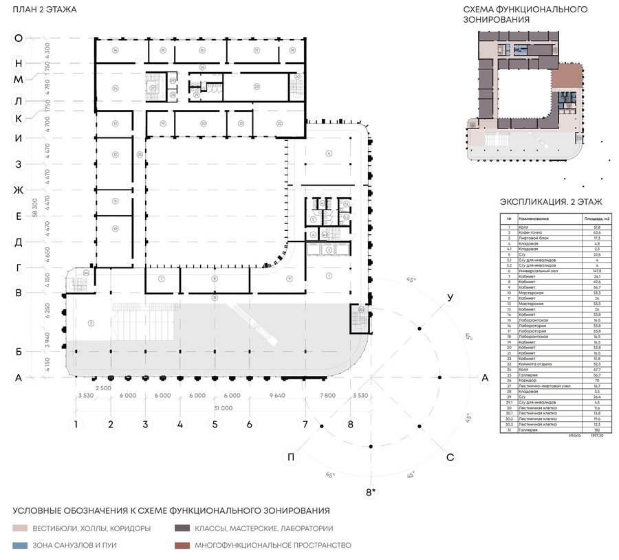
Планировка центра создает многофункциональную среду и дает возможность размещения мастерских, кафе, театральных пространств, коворкинга и многого другого под одной крышей.
Планы этажей арт-резиденции
Фотоэлектрические фасадные системы — это достаточно новое направление в солнечной энергетике.
Основной идеей применения солнечных фасадов является максимальная оптимизация конструктива здания для сокращения потребления ресурсов.
Особое внимание было уделено созданию целостного ансамбля современного здания с окружающей его исторической застройкой.
Развертка с ул. Республики
Развертка с ул. Володарского
Развертка с ул. Челюскинцев
Вид на объект с пешеходной зоны ул. Челюскинцев
Вид с ул. Республики
Вид с ул. Дзержинского открывает разноуровневое пространство
Вид на внутренний дворик
Главный вид на здание с ул. Республики