You need to enable JavaScript to run this app.
creativecity.
academy
создать место
карта
резиденты
образование
конкурсы
маркетплейс
блоги
о проекте
создать место
карта
резиденты
образование
конкурсы
маркетплейс
блоги
о проекте
RU
EN
Добавить проект
Вход
Андрей Асс
Исходный размер
312x495
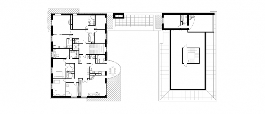
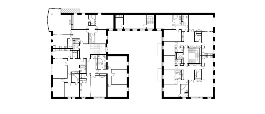
Жилой дом в Молочном переулке
дизайн среды
hse architecture research centre
темы
городская среда
архитектура
PROTECT STATUS: not protected
18
Исходный размер
1145x495
Исходный размер
1145x495
Исходный размер
1145x495
Исходный размер
1696x816
Исходный размер
1457x996
Исходный размер
707x591
Исходный размер
549x495
Жилой дом в Молочном переулке
Андрей Асс
дизайн среды
hse architecture research centre
темы
городская среда
архитектура
18
Проект создан 04.12.2022
Другие проекты c тегом
дизайн среды
Парковое пространство «За гранью понимания»
Шамай Исмаилова
7
Вертикальная планировка
Мария Самойлова
1
Производственная практика в архитектурном бюро Дружба
София Кладова
2
Производственная практика
Софья Сераж
0
Мы используем файлы cookies для улучшения работы сайта НИУ ВШЭ и большего удобства его использования. Более подробную...
Показать больше