
Мудборд

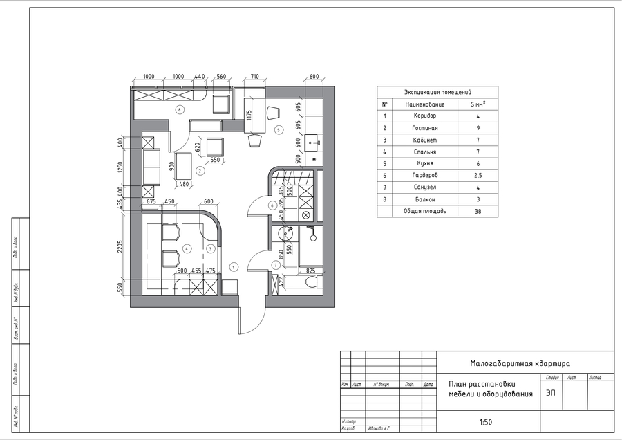
Квартира площадью 38 квадратных метров была спроектирована для молодой девушки 23-х лет, которая работает репетитором английского и немецкого языков.

Дизайн интерьера включает в себя элементы испанского модерна (смягчение угловатости стен и придание им изогнутой формы) и северного модерна, известного своими деталями, вдохновленными природой.
В квартире предусмотрено отдельное пространство для работы — кабинет, который также может использоваться для проведения очных занятий с учениками.
В квартире есть уютное место для встреч с друзьями — небольшая гостиная, где также имеется система хранения.
Гардеробная объединена с прачечной, а ванная комната с душевой. Спальное место размещено на антресоли для экономии пространства.
Кухня в квартире компактная, поскольку владелица не очень увлечена кулинарией и часто заказывает еду на дом.
На балконе есть небольшое место для хранения и уголок для отдыха на свежем воздухе.




