
Данный проект затрагивает тему сохранения наследия малых народностей, а также нацелен на улучшение качества досуга детей и взрослых в республике Карелия. Основной целью автора было дать пустующему дому Карельского молодёжного общества вторую жизнь, придерживаясь первоначального замысла его создателей, однако адаптировав его к запросам современного человека.
Планировочное решение

Функциональное зонирование направлено на создание уникального и современного пространства, которое станет центром притяжения для жителей Приозерского района, в особенности для детей и подростков.

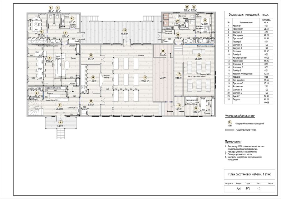
Планировочное решение предусматривает все необходимые помещения для интересного досуга. Среди них: большой концертный зал для общественных мероприятий, игровая и мастерская, зал для мягких спортивных практик и две кухни. Одна из них оформлена в формате столовой и безопасна для детей. Вторая — полноценная зона для готовки и небольших кулинарных мастер-классов.
Текстурные доски
Материалы, используемые в проекте, включают натуральный и крашенный массив сосны, шпон карельской березы, рогожку и велюр для обивки мебели, льняное полотно для занавеса, а также латунные и каменные элементы для оформления мокрых зон.
Палитра проекта должна быть естественной и передавать красоту карельской природы, но при этом вызывать ассоциации с волшебной сказкой. В качестве акцентных цветов были выбраны клюквенно-красный, глубокий серо-голубой и пыльно-хвойный оттенки.
Входная группа
Игровая
Зоны игровой и мастерской разделены перегородкой, отсылающей к типичной для северной архитектуры расстекловке окон, использованной в том числе при строительстве рассматриваемого дома молодежи. В игровой зоне установлен модульный диван, напоминающий валуны, а опоры столов в мастерской выполнены из цельного соснового бревна.
Мастерская
Холл у столовой
Умывальники были вынесены в зону малого холла, чтобы дети могли использовать их не только перед приемом пищи, но и после творческих занятий или уличных игр.
Столовая
Холл у кухни
Холл рядом с кухней оформлен в том же стиле, что и холл у столовой. Раковины здесь также вынесены в общее пространство, что делает их более удобными для использования во время проведения кулинарных мастер-классов и спортивных занятий.
Кухня
Зал аэройоги
Одно из самых больших помещений — зал мягких спортивных практик, таких как аэройога, растяжка и пилатес. Этот зал рассчитан в большей степени на молодых мам, для которых наиболее ценно расслабление, поэтому вдохновением для этого помещения стал пляж Ладожского озера.
Кабинет
Дальше по коридору находится кабинет руководителя. Здесь часто будут проходить встречи с организаторами мероприятий, поэтому интерьер выполнен в строгом и лаконичном стиле.
Концертный зал
Самым большим помещением в здании является концертный зал. Здесь важно было передать сложное переплетение русской, скандинавской и карельской культур, характерных для этого региона. Основная задача заключалась в создании интерьера, который был бы одновременно аутентичным и универсальным, так как зал предназначен для самых различных культурных мероприятий — от народных гуляний до театральных постановок.
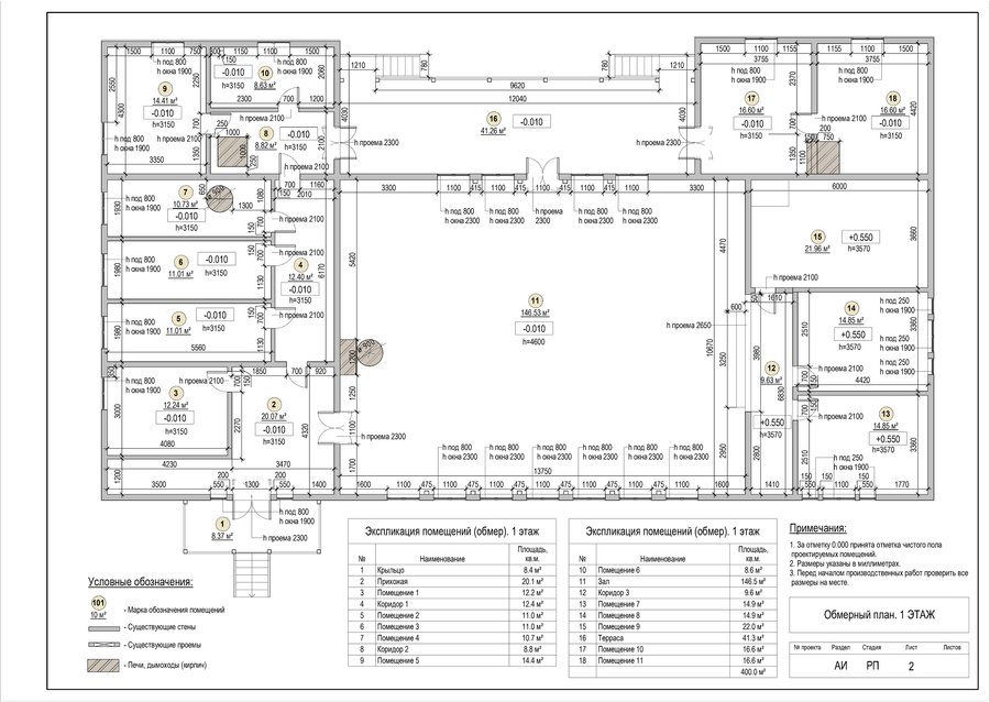
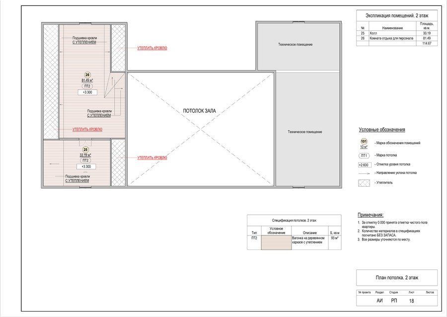
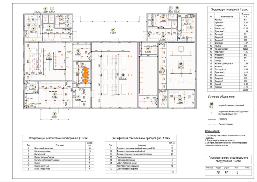
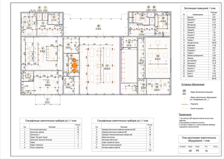
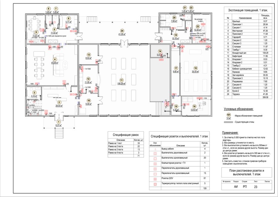
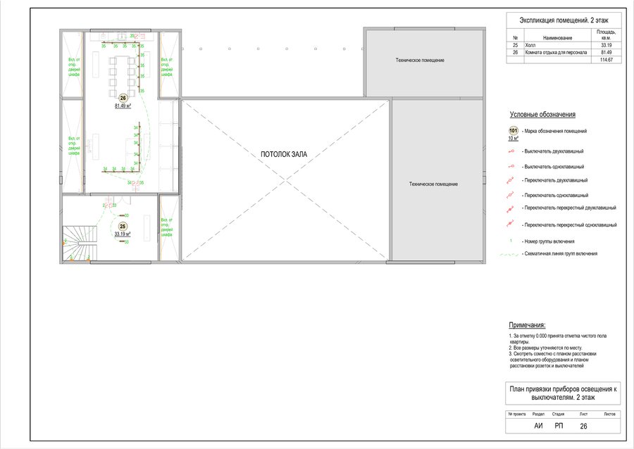
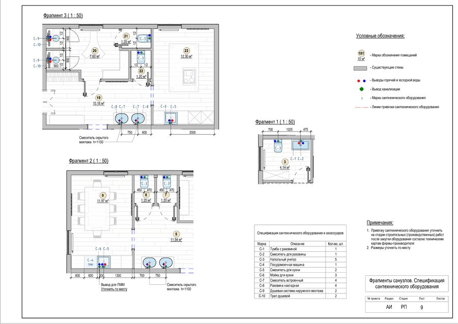
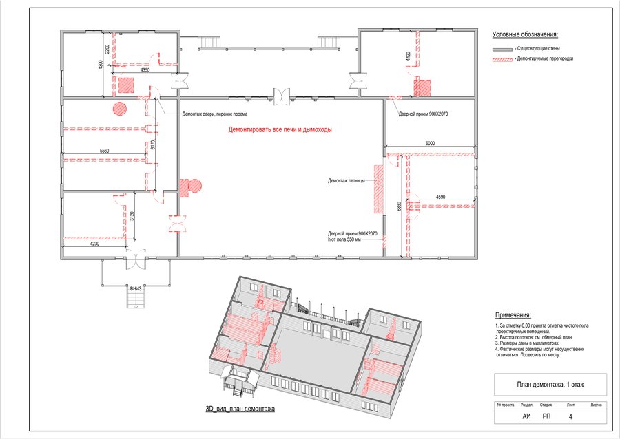
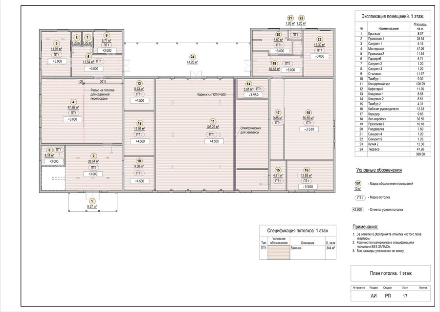
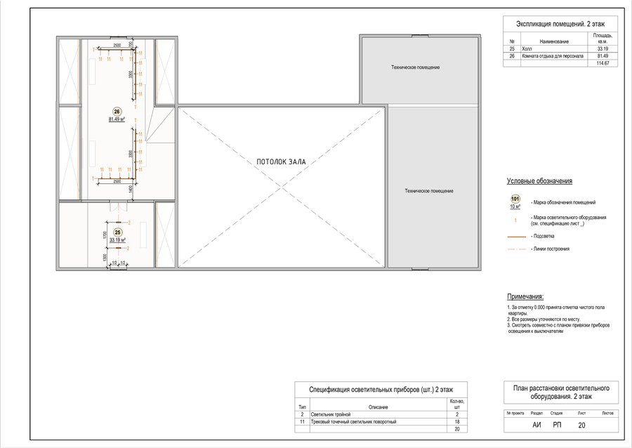
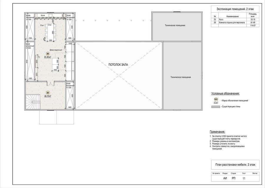
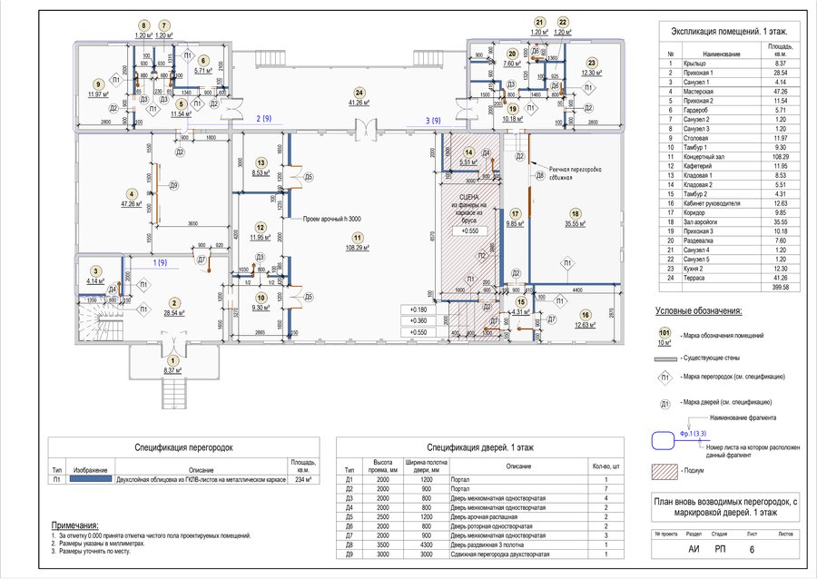
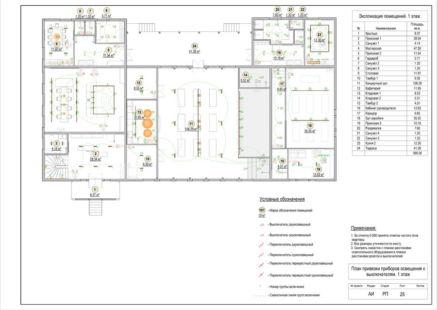
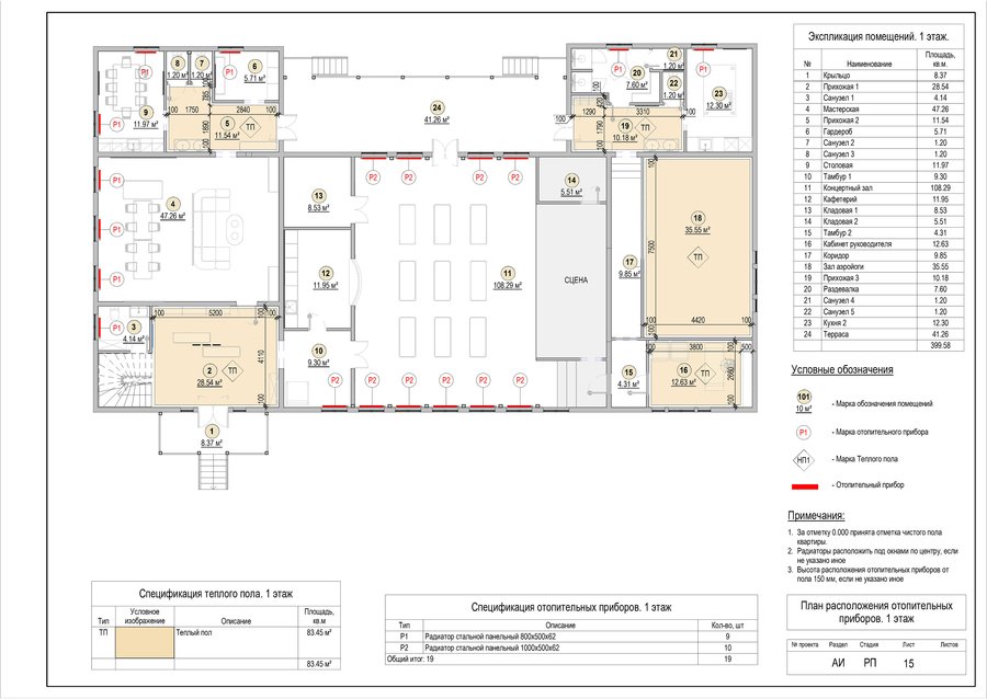
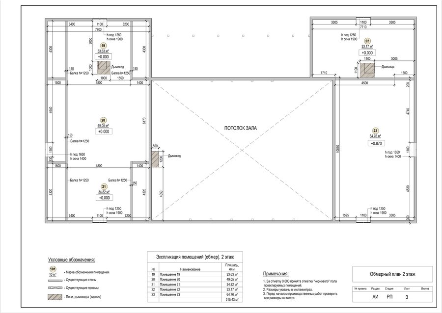
Техническая документация по проекту
Также был разработан полный пакет чертежей, включающий в себя планы демонтажа и монтажа стен, расстановку мебели, света, отопительного и сантехнического оборудования, раскладки напольных покрытий, план расстановки розеток и привязки приборов освещения к выключателям.