Лучшая рекреация средней и старшей школы on Creative city
Original size 2041x2853

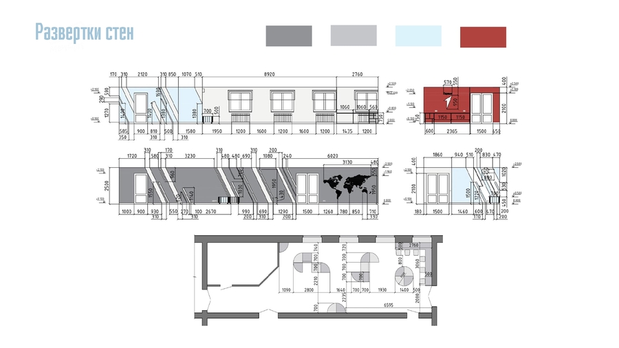
Лучшая рекреация средней и старшей школы

51

Лучшая рекреация средней и старшей школы

big
Original size 2667x1500
big
Original size 2667x1500
big
Original size 2667x1500
big
Original size 2667x1500
Original size 2667x1500
Original size 2667x1500
Original size 2667x1500
Original size 2667x1500
0
Original size 2000x1125
Лучшая рекреация средней и старшей школы
51
We use cookies to improve the operation of the HSE website and to enhance its usability. More detailed information on the use of cookies can be fou...
Show more