
Тема выпускной квалификационной работы — Реновация усадьбы-замка Владимира Семеновича Храповицкого под отель. Концепцией является объединение исторического облика здания с современным интерьером и размышлениями о том, как может выглядеть современный замок.

Анализ строения
Усадьба построена по заказу В. С. Храповицкого в конце XIX — начале ХХ века архитектором Петром Бойцовым, крупнейшим мастером усадебного строительства в стиле эклектики и неоготики. Парк спроектировали — Куфельт, Энке и А. Регель — один из основателей садового искусства ХІХ в.


Фотофиксация фасада


- Полуразрушенное состояние строения. - Отсутствует большинство стен и плит перекрытия. - Заброшенная обширная территория и сооружения. - Местность потеряла привлекательность. - Сокращение исторического потока к памятнику архитектуры.
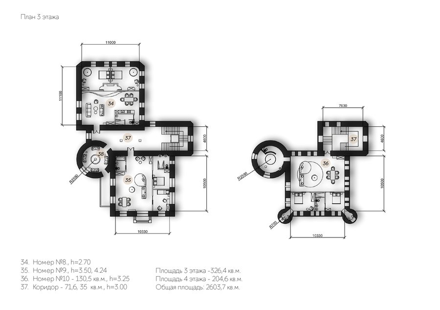
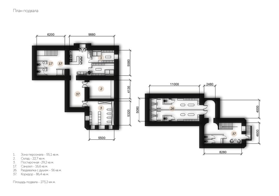
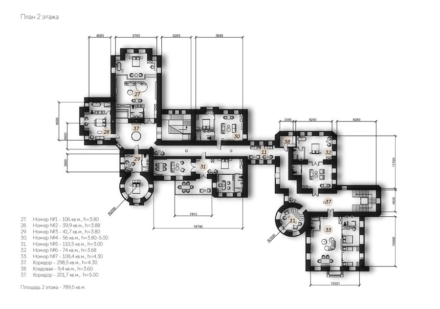
Исходные планы
Анализ территории
Ситуационный исторический план территории
Адрес: Россия, Владимирская область, Судогодский район, посёлок Муромцево, Дендрарий.
Местоположение
- Обширная парковая территория. - Исторические и современные постройки. - Пруд. - Дворцово-парковый ансамбль, занимает территорию свыше 40 га. - До административного центра Судогда — 4,6 км. До Мурома на юго-восток — 93,5 км.
Реновация
Рендер фасада
Было принято решение восстановить историческую планировку с редкими нововведениями.
Функциональное зонирование
План с размерами
Ресепшен, 1 этаж
Ресепшен, 1 этаж
Лобби, 1 этаж
Лобби, 1 этаж
Барр, 1 этаж
Лобби, 1 этаж
Лобби, 1 этаж
Лобби, сцена, 1 этаж
Бассейн, 1 этаж
Бассейн, 1 этаж
Ресторан, 1 этаж
Ресторан, 1 этаж
Ресторан, 1 этаж
Номер 3, 2 этаж
Каждый номер в отеле уникален. Они имеют персональный дизайн с отличительной «визитной карточкой», собственную цветовую палитру и настроение.
Номер 3, спальня, 2 этаж
Номер 3, гостиная, 2 этаж
Номер 3, санузел, 2 этаж
Номер 10, 4 этаж
Номер 10, гостиная, 4 этаж
Номер 10, спальня, 4 этаж
Номер 10, санузел, 4 этаж