В данном проекте представлен архитектурный образ Хабаровского драматического театра, вдохновленный величием реки Амур и её живописной набережной. Красота водной стихии, её плавные изгибы, нашли отражение в формах здания и деталях интерьеров.

Хабаровск — один из крупнейших городов Дальнего Востока, расположенный на берегу Амура. Этот город богат историей, культурой и природной красотой, а река Амур играет в его жизни особую роль. Это не просто водная артерия, а душа и сердце города, его символ и неотъемлемая часть городской идентичности.

Я решила расположить театр у воды, но немного дальше от центра города. Такое решение обусловлено не только живописным видом на Амур, но и желанием оживить район, который сегодня остается в тени центральных территорий. Театр станет новой точкой притяжения, придаст району культурную значимость и вдохнет в него новую жизнь.
Формообразование
Формообразование здания театра основано на динамическом образе всплеска воды, возникающего при падении предмета. Этот мимолётный момент запечатлён и преобразован в архитектурную форму, сочетающую в себе текучесть и энергию.
изометрия
Разрез
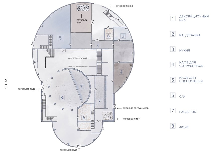
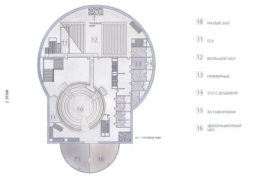
Планы
Визуализации
Визуализации интерьеров
интерьер фойе
интерьер фойе
интерьер кафе
Кафе для посетителей театра — светлое пространство, с панорамными окнами, открывающими вид на Амур, создано для комфортного отдыха и общения зрителей. Потолок, украшенный панелями, имитирующими мерцание воды, благодаря своей фактуре и материалу, отражает свет, создавая иллюзию водной поверхности





