Погружение в гармонию души и тела среди величия природы
Спа-отель объединяет в себе роскошь современного отдыха и духовную связь с природой Алтая. Это место, где гости смогут восстановить силы, найти внутренний баланс и насладиться уникальным ландшафтом региона.
Концепция доступного спа отдыха для души и тела. Пространство, в котором обьединяются природа и забота о себе.
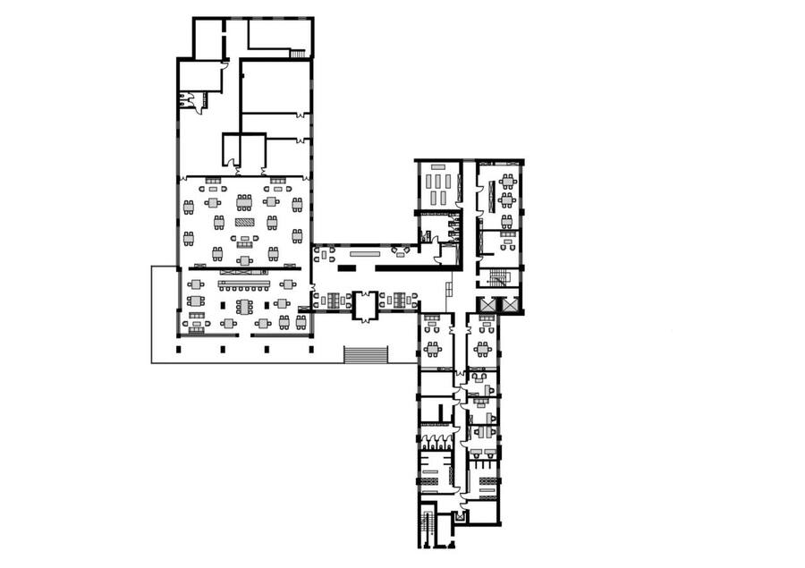
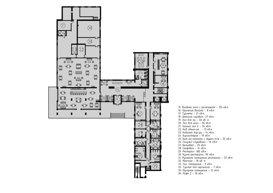
1 этаж
— Респшн — Ресторан — Зал для йоги и мастер классов — Зона для персонала
Исходный размер 3500x2480
Исходный размер 3500x2480
Исходный размер 3500x2480
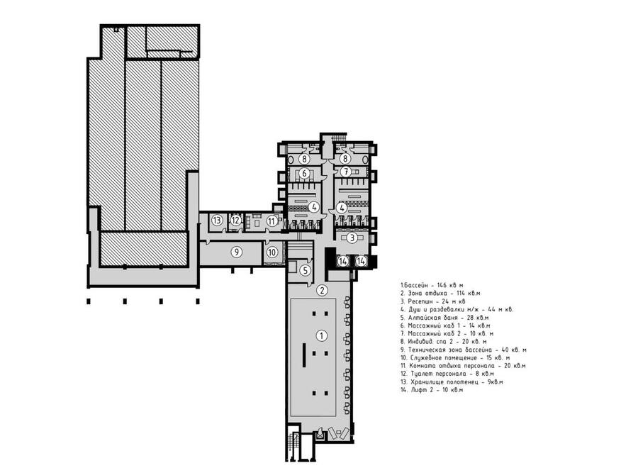
-1 этаж
— массажные кабинеты — Бани -Спа
Исходный размер 3500x2480
2/3 этаж
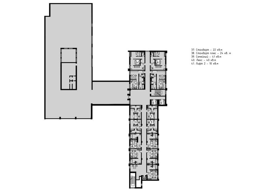
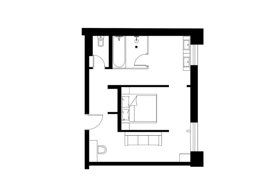
— Номерной фонд: — Стандарт — Стандарт плюс — Семейный — Люкс
Исходный размер 3500x2480
Исходный размер 3339x2479
Исходный размер 3500x2480
Исходный размер 3500x2480
Исходный размер 3500x2480
Планировочные решения


