
АПГРЕЙД — это студия, которая переделывает ненужные предметы в функциональные, путем соединения их деталей, как конструктор. Готовые изделия становятся полезными вещами и могут служить предметами интерьера и декора.

Фирменный стиль разработан Кристиной Соляновой, студенткой ВШЭ
Техническое задание: Спроектировать интерьер шоурума студии с учетом стилистических особенностей фирмы, учитывая при этом функциональные и концептуальные аспекты.
Концепция:

Шоурум является мастерской, где проводятся воркшопы и продаются изделия фирмы. Работа строится по принципу принеси/сделай/купи. Посетители могут принести свои предметы, которые станут частью нового объекта, прийти на воркшоп или купить товары. Транспортировочные ящики служат подставкой для предметов, имитируя выставку.
Мудборд:

Текстурная доска:
В проекте используется небольшое количество натуральных материалов, гармонирующих между собой. Дерево для корпусной мебели и отделки, бетон, камень, ткань, стекло, а также металл.
Локация — ДК Кирова
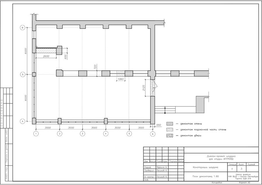
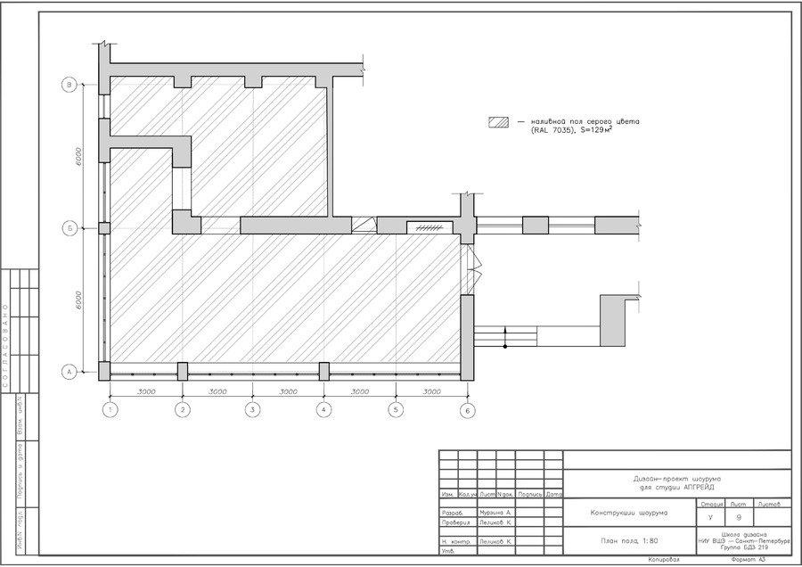
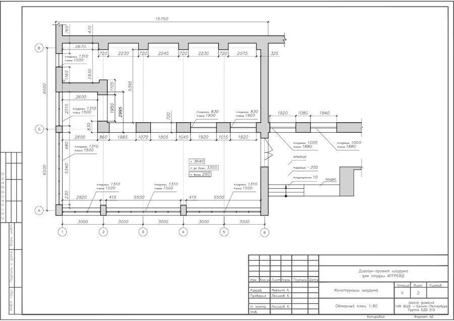
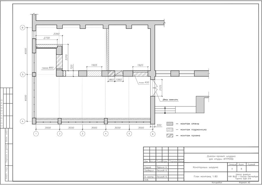
ДК Кирова на Васильевском острове в г. Санкт-Петербург находится под охраной КГИОП, поэтому нельзя было менять планировку проектируемого участка. В шоурум посетители могут попасть не только из помещения, но также и с улицы.
В данное время помещение пустое, также был произведен выезд на объект с целью замера.
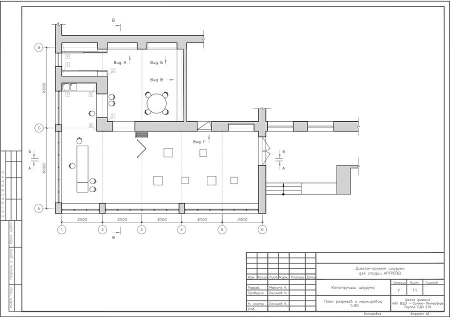
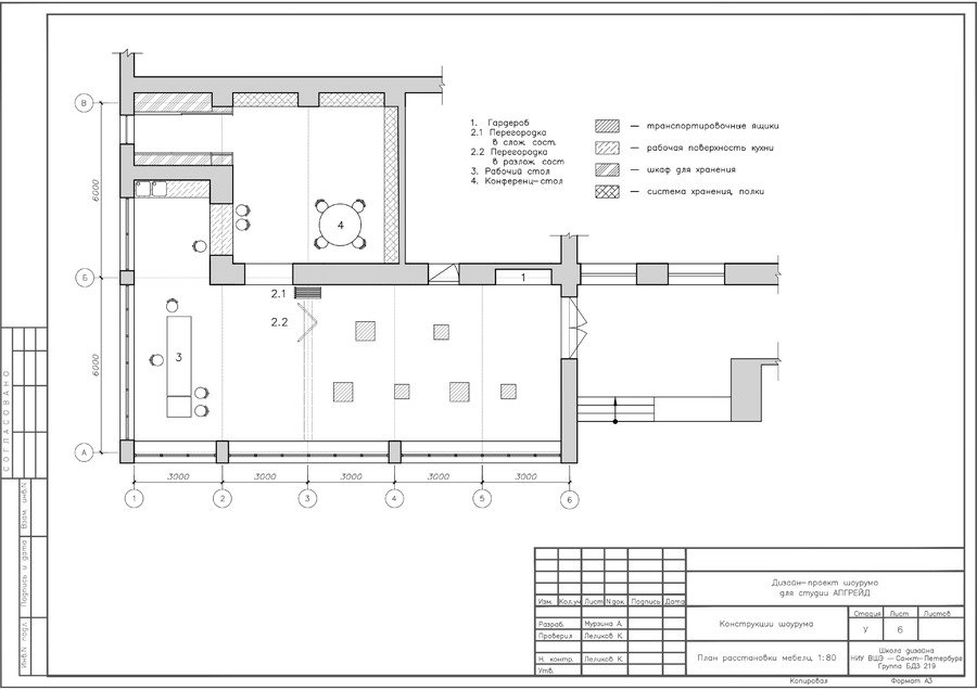
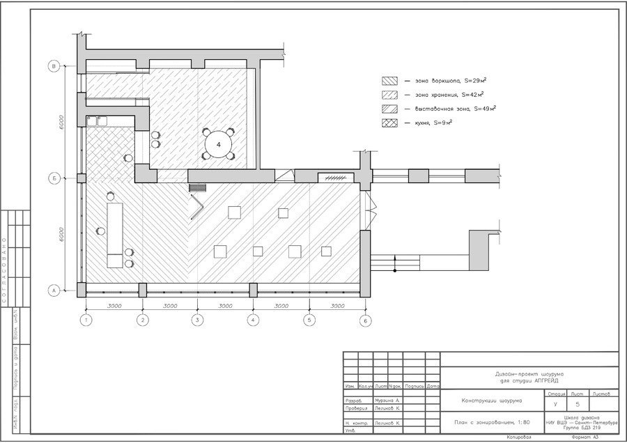
Планировочное решение:
1 — общая зона; 2 — рабочая зона; 3 — техническая зона; 4 — зона хранения
Первая зона — выставка, притягивающая внимание посетителей. Далее рабочая зона, которая отделена перегородкой и при этом совмещена с тех. зоной. В тех. зоне есть «окно» в хранилище — таким образом можно быстрее передавать предметы, не мешая выставке и другим. А в зоне хранения предметы скрыты от посторонних глаз, тут люди могут отдыхать.
Коллажи-концепции:
Концепция общей зоны — выставка объектов, созданных в студии, и сама зона для проведения воркшопов. При помощи мебели и материалов достигается атмосфера мастерской, где нет препятствий для полета фантазии.
Техническая зона необходима творческому пространству, она обустроена мойкой, кроме того, предусмотрено место для хранения инструментов. Акцентный материал — металл, он подчеркивает функциональность помещения и служит инструментом зонирования.
В зоне хранения преобладает дерево, что делает пространство чистым и единым, даже при наличии большого количества вещей. Система хранения предполагает закрытые шкафы и открытые модульные стеллажи. Кроме того, в этой комнате есть место для отдыха.
Мебель в проекте:
В проекте частично использована мебель известных дизайнеров — Stool 60 Алвара Аалто и два стула Константина Грчича — Tuffy The Wild Bunch Chair и Tom& Jerry stool.
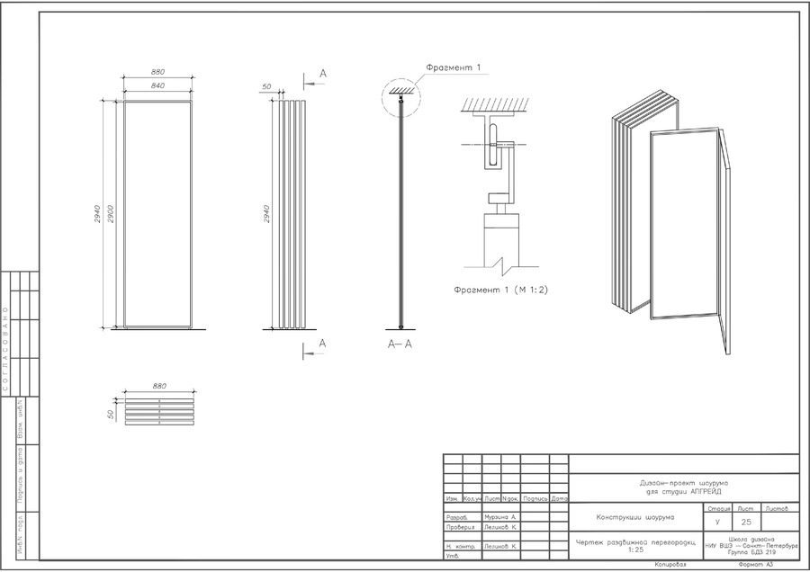
Остальная мебель была спроектирована для данного проекта, в частности, стол в мастерской.
Визуализации:
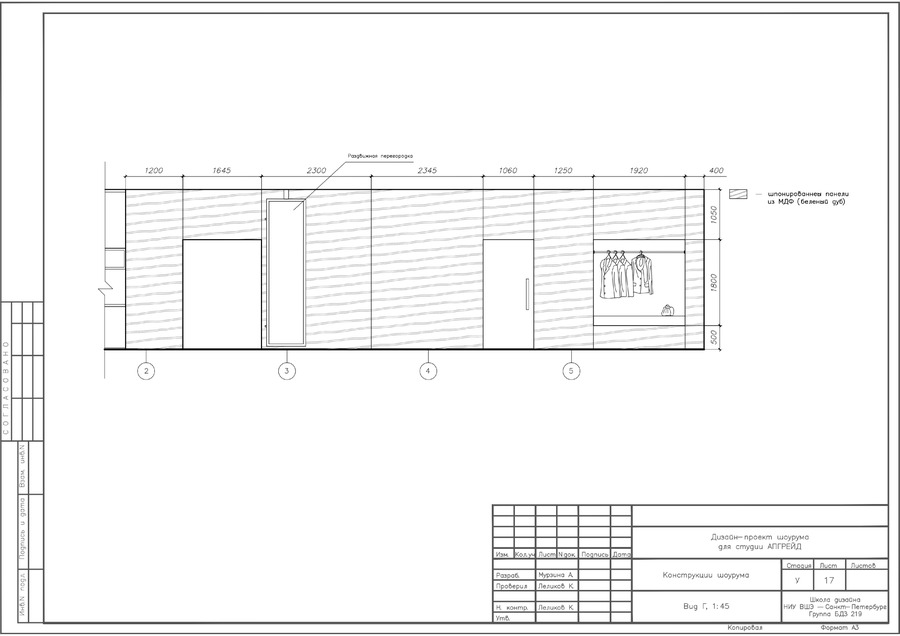
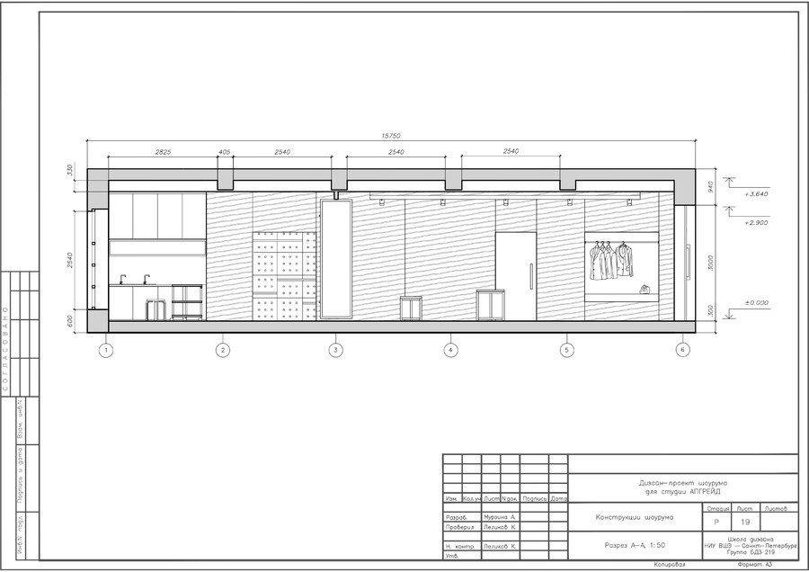
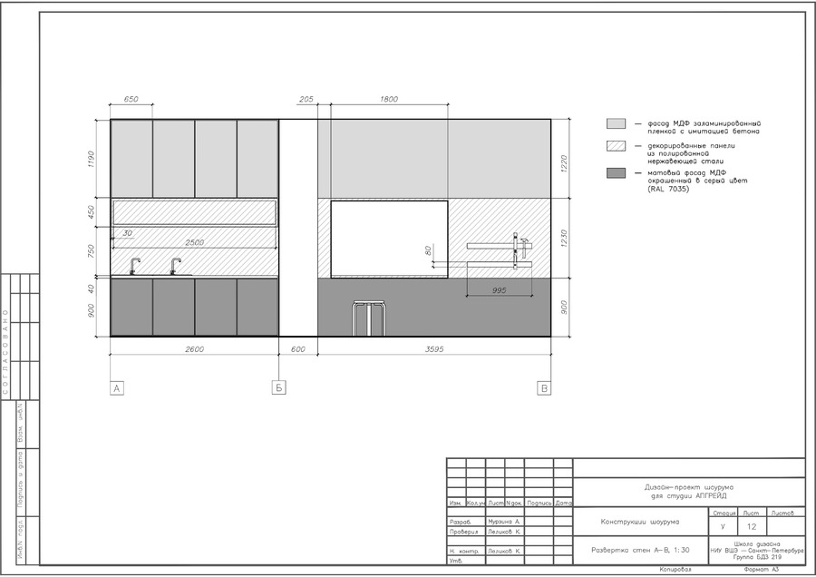
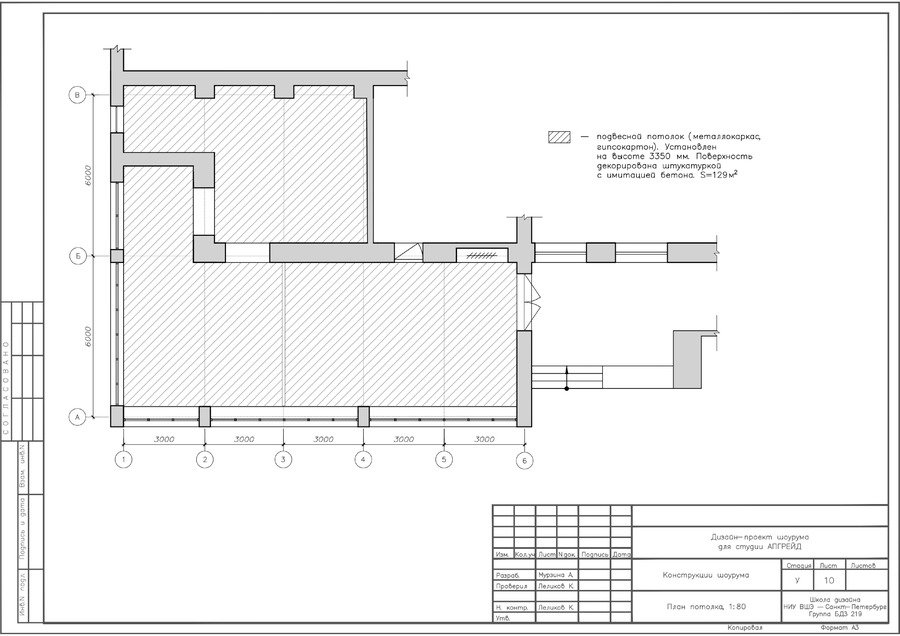
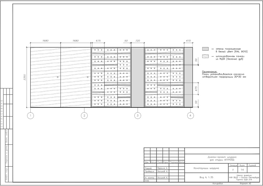
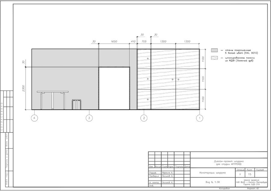
Альбом чертежей: