Мы досконально изучили историю становления Orac Decor на выставке MosBuild. Яркие стенды бренда надолго запомнятся посетителям и организаторам этого масштабного события — бельгийский дом, вагон железнодорожного экспресса, отель.
Что дальше?
А дальше, предлагаем поменять концепцию. Иначе, чтобы мы не построили, хоть дворец Тадж-Махал — это станет просто продолжением стройного ряда подобных проектов.
На наш взгляд, этот прием себя уже отработал — пришло время новых решений!
«Делайте что хотите и где хотите, и вы всегда будете особенными, потому что создаете что-то свое.»
Orac Decor — несомненно бренд вдохновения. Каждый раз, на протяжении нескольких лет он доказывает это, привлекая гостей MosBuild своими неординарными выставочными стендами, таким образом вдохновляя на творчество.
В этот раз мы предлагаем пойти еще дальше и представить продукцию бренда, как объект для создания произведений современного искусства. В коллаборации с интересным художником, мы создадим несколько арт-инсталляций, раскрывающих суть бренда и представим их в настоящей галерее.
ДОБРО ПОЖАЛОВАТЬ В ORAC GALLERY!
Анонсирующие постеры
Сегодня в мире заправляет ФОРМА, поэтому она присутствует в основе архитектуры нашего стенда, а именно — его величество Овал.
Почему овал?
По многим соображениям: • Не секрет, что «0» визуально увеличивает размер; • Название бренда начинается с овальной буквы «0»; • Овальная форма у цифры 0 — это начало, нулевая отметка, старт процесса. Так овал символизирует зарождение жизни в пустоте; • А еще, это яйцо — безусловный шедевр природной формы. Совершенство как эстетическое, так и функциональное.
Экстерьер стенда. Общий вид
Экстерьер стенда. Общий вид
Цифровой постер «Форма•Цвет•Свет» на фасаде
Экстерьер стенда. Зона входа в галерею
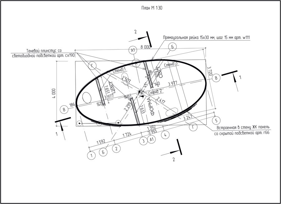
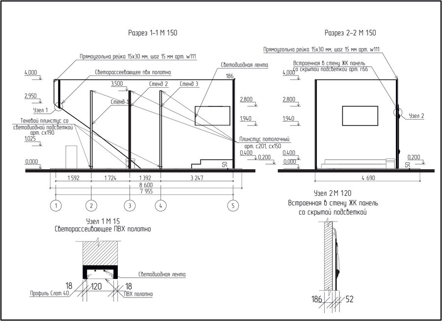
План-схема стенда
ФОРМА_ЦВЕТ_СВЕТ = ВДОХНОВЕНИЕ
Арт-объекты галереи расскажут посетителям о трех состояниях, через которые можно описать абсолютно все в окружающем живом и предметном мире, которые дают нам возможность творить и создавать что-то новое.
Тема современного искусства станет метафорой и идейным триггером для людей постоянно ищущих вдохновения.
КОЛЛАБОРАЦИЯ Автором работ станет известный московский художник Алексей Лука, чьи работы строятся вокруг создания коллажей разной формы из совершенно неожиданных материалов (его стенд стал победителем ярмарки современного искусства COSMOSCOW 2023).
Moodboard
РАБОТА СТЕНДА ПО ПРИНЦИПУ POP-UP ГАЛЕРЕИ
Любой желающий сможет посетить Orac Gallery во время работы выставки MosBuild, нужно лишь оставить данные о себе в короткой форме регистрации (лидогенерация). Мы разработаем удобную механику для регулирования трафика и удобства коммуникации. Обученный персонал будет проводить экскурсию по галлерее и раскрывать идею художника.
После посещения стенда гостей ждет небольшой сувенир в виде открытки с репродукцией одного из арт-объектов выставки, а VIP-гостю будет вручаться постер с репродукцией в фирменном тубусе.
В первый день выставки предполагается небольшая пресс-конференция автора и автограф-сессия прямо на стенде.
Интерьер галереи
Интерьер галереи
Интерьер галереи
Мебель и оборудование
Сувениры для посетителей стенда
ХАЙЛАЙТЫ:
1.Выставка в выставке — увеличиваем время контакта и удерживаем внимание зрителя;
2.Интерьер как высокое искусство — создаём из продукции бренда не просто декорации, а настоящие арт-объекты*;
3.Три состояния, как суть всего, что нас окружает и вдохновляет;
4.Участие медиа-персоны — Алексей Лука, художник с мировым именем;
5.PR-эффект от коллаборации, привлечение новой аудитории.
*Финальный вариант арт-объектов будет создан после подведения итогов конкурса, в случае победы. В проекте стенда использованы предварительные эскизы — стилизации по мотивам творческих работ Алексея Луки.




