Бриф
Исходный размер 3500x2480
«Архитектура создается, „изобретается заново“ каждым кто совершает попытку построить, каждым, кто бродит по ее пространству, поднимается по лестнице, опирается на балюстраду, поднимает голову, чтобы посмотреть, открыть, закрыть дверь, — писала Лина Бо Барди.
Мудборд настроения
Исходный размер 3500x2480
Референсы
Мудборд материалов
Исходный размер 3500x2480
Ситуационный план
Исходный размер 3500x2480
Фотофиксация помещения
Исходный размер 3500x2480
Зонирование
Исходный размер 3500x2480
Визуализации
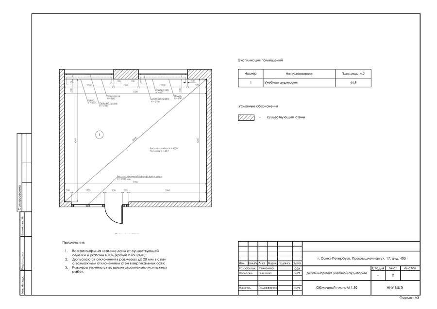
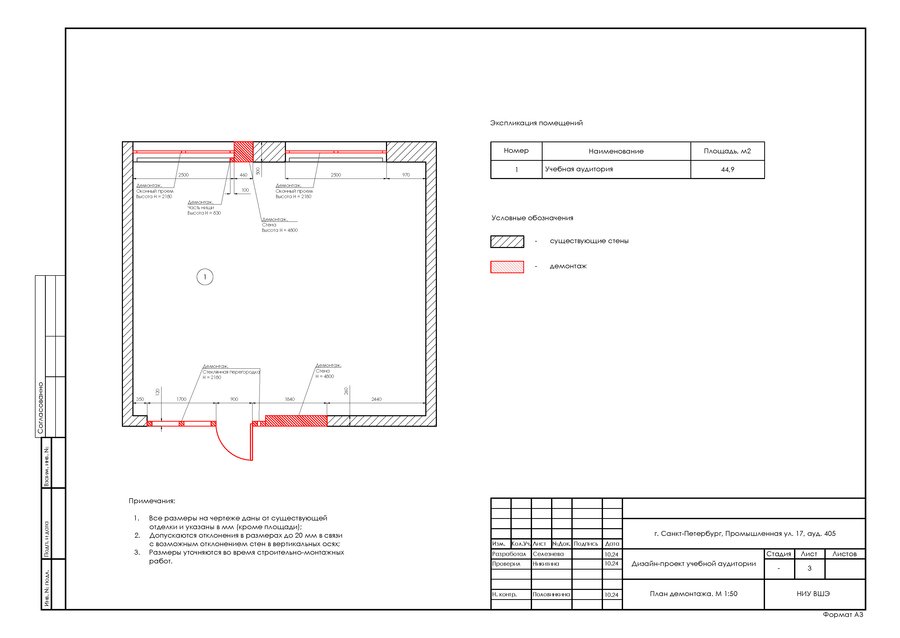
Техническая часть




