

Вход

Ресепшен

Ресепшен
Ресепшен
Лобби
Лобби
Лобби
Вход в лифтовую зону
Лифтовая зона
СПА зона
СПА зона
СПА зона
СПА зона
Процедурный кабинет
Процедурный кабинет
Процедурный кабинет
Номер
Номер
Функциональное зонирование и планировачное решение (1 корпус)
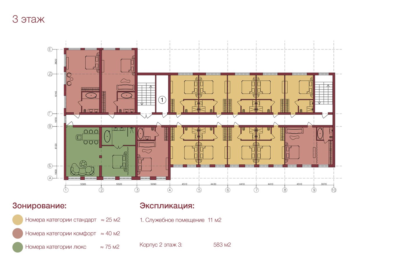
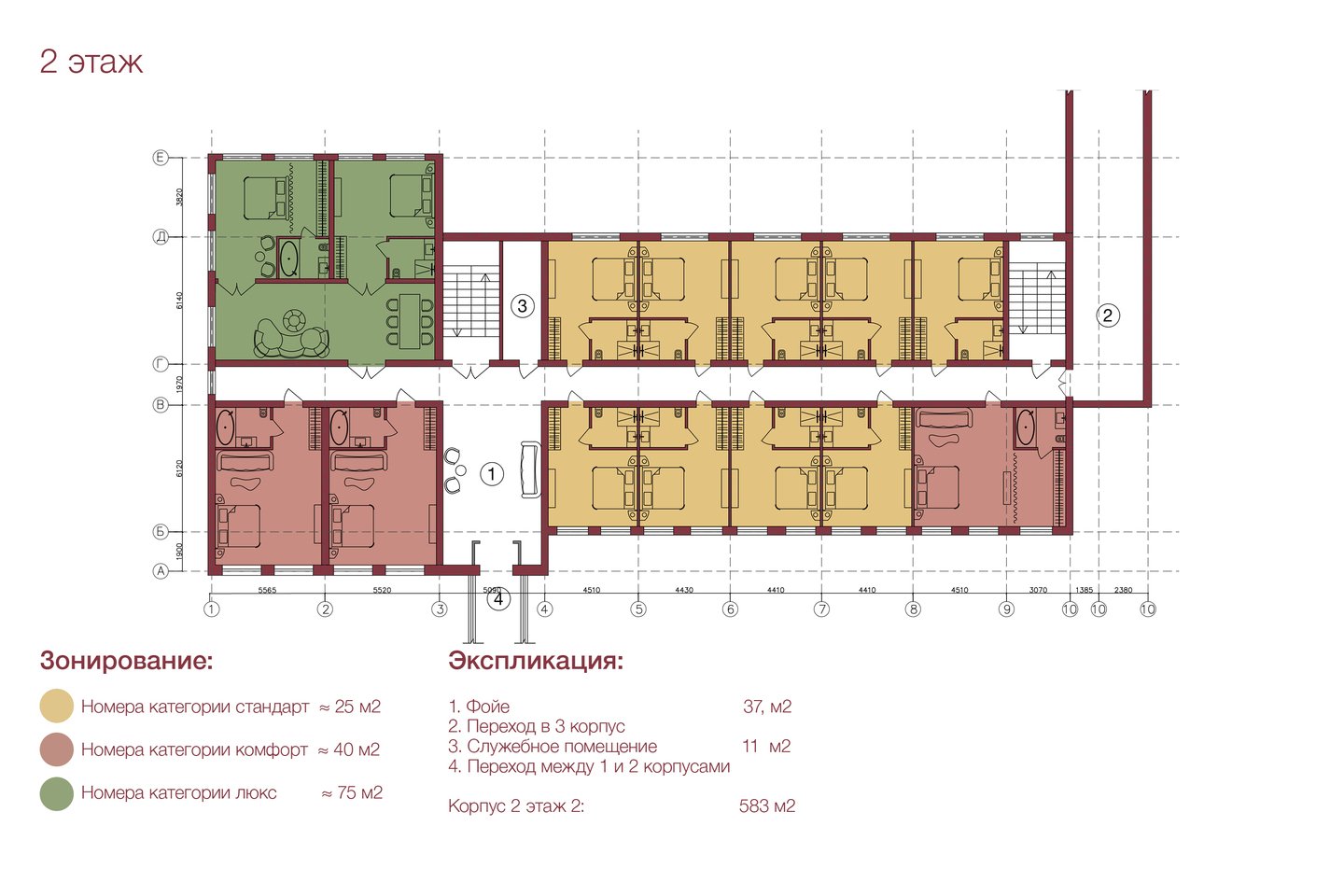
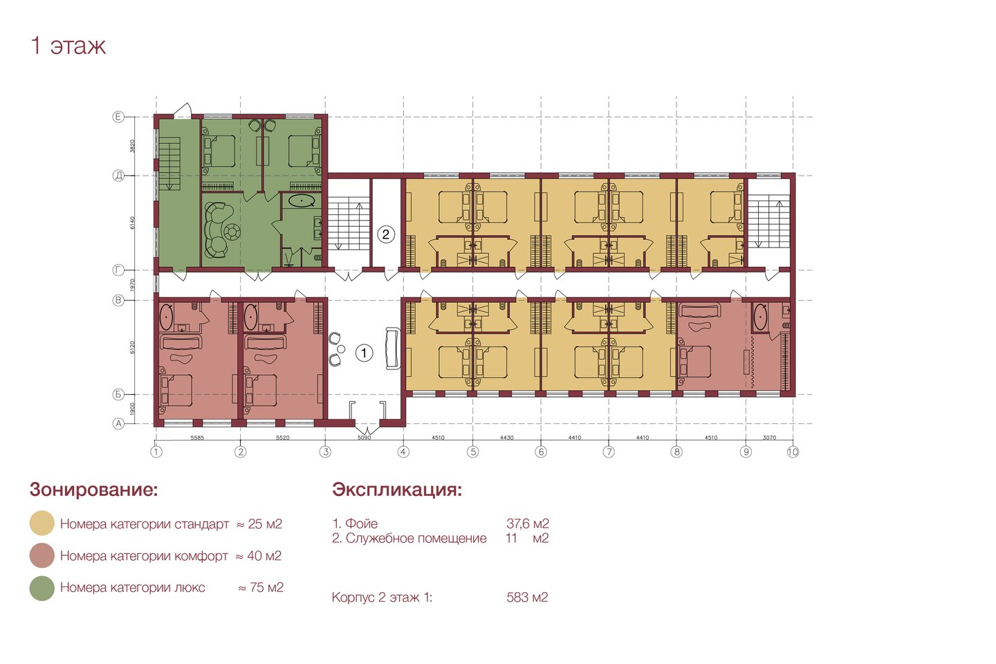
Функциональное зонирование и планировачное решение (2 корпус)
Функциональное зонирование и планировачное решение (3 корпус)