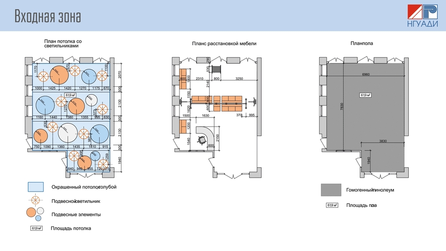
Проект входной зоны выполнен студентами Новосибирского государственного университета архитектуры, дизайна и искусств им. А. Д. Крячкова г. Новосибирска в рамках проекта «Школа мечты»
We use cookies to improve the operation of the HSE website and to enhance its usability. More detailed information on the use of cookies can be fou...
Show more
Press space bar to start a drag.
When dragging you can use the arrow keys to move the item around and escape to cancel.
Some screen readers may require you to be in focus mode or to use your pass through key