Для разработки архитектурной концепции культурного центра с узбекской идентичностью было выбрано здание по адресу: Москва, ЦАО, ул. Воронцово Поле, 12с1. Этот объект расположен во дворе исторического квартала на стыке Таганского и Басманного районов, в окружении разновременной застройки и объектов культурного наследия. Район отличается насыщенной историко-градостроительной структурой и высоким уровнем пространственной и социальной динамики.
Характер среды задаётся разнообразием пользовательских сценариев и потенциальной мультикультурностью аудитории. Эта территориальная сложность создаёт предпосылки для культурного диалога и делает место перспективной точкой для репрезентации локальной и этнической идентичности в широком городском контексте.
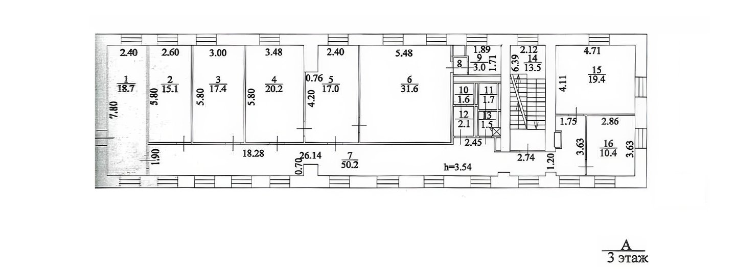
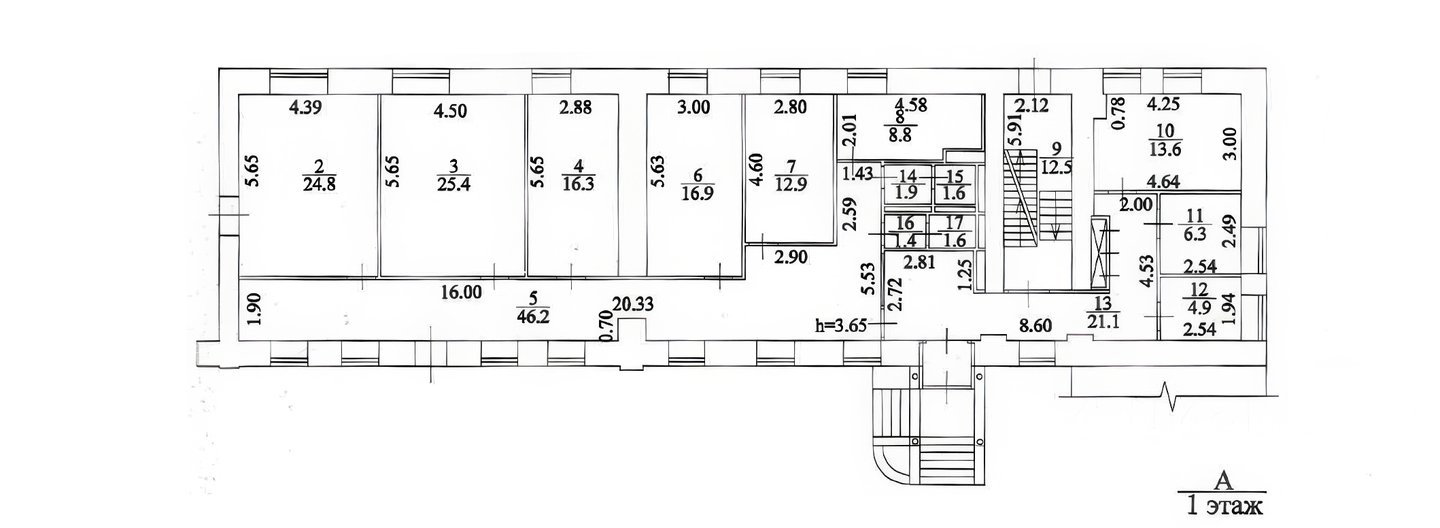
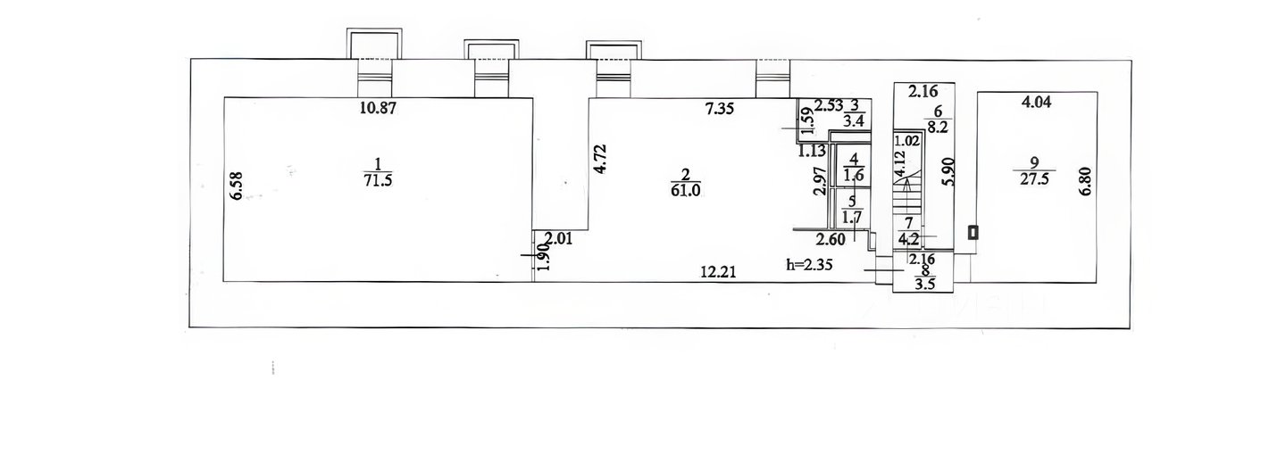
Физические характеристики:
📍Москва, ул. Воронцово Поле, 12с3
Площадь 1 337 м²
Пешая доступность от станций метро «Курская» и «Чкаловская» — 400 метров. 4 этажа + подвал + чердак. Без лифта (лифт можно пристроить). Капитальный ремонт проводился в 2010 году.
Вентиляция приточно-вытяжная. Кондиционирование центральное. Электрическая мощность 149 кВт. Система оповещения о пожаре. На закрытой территории предусмотрена наземная парковка на 5 машин.
Здание относится к типичной небольшой кирпичной постройке конца XIX — начала XX века
Культурно-исторический слой:
Капцовы — потомственная купеческая семья, известная торговлей шёлковыми товарами и благотворительностью.
Бывший особняк купцов Капцовых, 1923 г.
Слева: Хотевский план Москвы 1952 г. Справа: современная карта 2025 г.
Вид Воронцова Поля, 1884.
Территория Воронцова Поля формировалась как многослойное пространство, где каждый исторический этап оставил свой культурный след. В XIV веке здесь существовало село Воронцово — владение князей Воронцовых-Вельяминовых, позже перешедшее под управление Спасо-Андроникова монастыря. В XV–XVI веках место связано с великокняжеской историей: Иван III жил здесь после пожара 1493 года, а Василий III возвёл каменную церковь Благовещения. В эпоху Ивана Грозного территория вошла в опричнину.
Храм Пророка Илии на Воронцовом Поле, 1900 г.
В XVII веке произошёл кардинальный перелом: земли были переданы стрелецким полкам, а часть прежних жителей переселена за Таганку. К XVIII веку формируется усадебный надъяузский ландшафт, связанный с родами Безбородко и Потёмкина. XIX век закрепил район как купеческую окраину с малоэтажной застройкой и выразил присутствие немецкой диаспоры Вогау, благодаря которой улица получила неофициальное название «Вогау-штрассе».
Обуха (Воронцово Поле) ул., 16. Решётка
1. Воронцово Поле, дом 9, 1954 г. 2. ул. Обуха, 1979 г.
XX век принёс драматические изменения: утраты храмов, антинемецкие погромы 1914–1915 годов, превращение евангелической больницы в советский исследовательский институт мозга. Советская эпоха изменила функции многих зданий, но сохранила исторический каркас.
ул. Обуха, 1990 г.
Сегодня Воронцово Поле воспринимается как редкий городской фрагмент, где разные исторические эпохи продолжают сосуществовать в одной пространственной структуре. На этой территории последовательно сменялись княжеские владения, монастырские земли, стрелецкие слободы, усадебные ансамбли, купеческая Москва и советская научная инфраструктура — каждая эпоха привносила собственные формы и смыслы. При этом элементы предыдущих периодов не исчезали окончательно: они оставались в уличной сети, в силуэтах домов, в отдельных архитектурных деталях. Благодаря этому место сохраняет ощущение исторической глубины — здесь легко «прочитать» городскую эволюцию не по учебнику, а по самому пространству, где разные временные пласты сложились в сложную и выразительную городскую ткань.
Чувственные и визуальные образы:
Граффити на улице Земляной Вал (фото из личного архива)
«Флигель городской усадьбы Капцовых, XIX век» (фото из личного архива)
Церковь Илии Пророка, что на Воронцовом поле (фото из личного архива)
Классические фасады, кованые решётки, заборы и козырьки образуют устойчивый визуальный код, который постоянно вступает в контакт с молодёжной культурой — граффити, наклейками на трубах, временными конструкциями и неоновыми вывесками.
Граффити на стенах торгового центра «Атриум»
Трещины, осыпающаяся штукатурка, строительные сетки, залатанные участки тротуаров и красно-жёлтые сигнальные ленты фиксируют непрерывный процесс «чинят-перечиняют», задавая ритм острых графичных линий среди исторической ткани.
Фактуры и материалы местности (фото из личного архива)
(видео из личного архива)
Творческая среда (фото из личного архива)
Граффити на старой штукатурке и кованые решетки (фото из личного архива)
1. Ритмика Балконов со ржавыми антеннами; 2. Мостовая (фото из личного архива)
На перекрестке улицы Обуха и Земляной Вал (видео из личного архива)
Звуковая среда усиливает ощущение наслоения эпох: стук колёс трамвая, разговоры студентов, пиликанье пешеходных светофоров, шум машин по мокрому асфальту, капли с крыш, детские голоса со школьного двора. В тихих дворах — шелест листьев и журчание под люком.
Звуки журчания воды во дворе (фото из личного архива)
Реальсы — рельсы, разметка- разметка (фото из личного архива)
Район существует в режиме постоянной адаптации: туристические потоки соседствуют со школьниками, курьерами и жителями старых усадеб. В результате формируется гибридная идентичность места, где разные временные слои не вытесняют друг друга, а вступают в устойчивый культурный диалог.
Ремонт, реставрация, адаптация (фото из личного архива)
Социально-функциональный контекст:
Современное население и использование территории
Сегодня Воронцово Поле — смешанный по функциям и аудиториям квартал. Постоянных жителей немного: старые малоэтажные дома соседствуют с отреставрированными клубными домами и зданиями учреждений. Социальная среда неоднородна: здесь живут и коренные москвичи, и новые обеспеченные собственники жилья.
В будни район наполняют сотрудники близлежащих организаций — Российского исторического общества, посольства Индии, НИИ неврологии, офисных центров у Яузы. К ним примешиваются студенты из кампуса ВШЭ и Британской высшей школы дизайна, расположенной через реку. Поэтому на улице встречаются и офисные работники, и творческая молодежь, что формирует динамичную, но спокойную городскую среду.
Уличная активность и сценарии поведения
Квартал Воронцова Поля находится на стыке Таганки и Басманного района, и эта промежуточность формирует его характер. Яуза, когда-то служившая чёткой границей, сегодня стала связующим элементом: пешеходные мосты и благоустроенные набережные объединяют территории. Через Серебрянический мост за несколько минут можно попасть в Artplay — крупный творческий кластер, откуда посетители часто переходят в спокойные улицы Воронцова Поля, а жители — пользуются инфраструктурой соседнего района.
С другой стороны, квартал связан с Покровкой и Чистыми прудами: Яузский бульвар плавно выводит к Покровским воротам. Здесь чувствуется контрастный, но органичный переход — от тихих дворов к оживлённой городской жизни с ресторанами, театрами и вечерней атмосферой. Для жителей такая близость — преимущество: можно гулять, встречаться, проводить время в публичных пространствах, не ощущая резкого перепада среды. Благодаря продуманному ландшафту границы районов здесь почти растворены, а пространство воспринимается единым и связным.
Т-Аналитика района
Тепловая карта стоимости жилья
Транспорт здесь ограничен, и пешеходы появляются чаще по конкретным поводам: офисы, учреждения, дипломатические миссии. В будни днём район живёт рабочим движением, но к вечеру атмосфера становится прогулочной. Воронцово Поле входит в популярные экскурсионные маршруты: группы останавливаются у особняков и старых церквей, превращая улицу в своеобразный «музей под открытым небом».
При этом пространство не выглядит законсервированным. Здесь работают кафе и творческие площадки: например, «Прожектор» и галерея Triptych, привлекающие молодёжь, художников и посетителей Artplay. Галерея проводит выставки и кинопоказы, что придаёт улице вечернюю активность. В выходные, когда учреждения закрыты, квартал становится тихим уголком в центре: архитекторы, фотографы и городские исследователи гуляют между отреставрированными особняками и заброшенными флигелями. Местная молодёжь использует пространство по-своему: через внутренние дворы идут «короткие пути», связанные сеткой старых проходов и лазеек, позволяющих перемещаться между Яузой и Покровкой вне главных улиц.
Так формируется сложный образ квартала — место одновременно историческое, жилое и творческое, где старые маршруты, новые культурные точки и неформальные практики создают живую, многослойную городскую среду.
Связи с соседними кластерами и границы района
Несмотря на связность пространства, по обе стороны Яузы ощущаются разные смысловые зоны: таганский берег хранит атмосферу «старой Москвы» с монастырями и тихими историческими улочками, тогда как басманный — более динамичен, с наследием Немецкой слободы, креативными кластерами и студенческой средой. Внутри самого Воронцова Поля подобная граница проходит по Яузскому бульвару: западная часть ближе к центру и оживлённее, восточная — спокойнее. При этом квартал остаётся компактным и смешанным по аудиториям: туристы, жители, офисные сотрудники и творческая молодёжь пересекаются здесь ежедневно. Такое сосуществование исторической, религиозной и современной культурной сред делает Воронцово Поле уникальным точкой пересечения разных городских смыслов.
Архнадзор. Улица Воронцово Поле. URL: https://archnadzor.ru/2009/07/16/ulica-voroncovo-pole/ (дата обращения: 25.11.2025).
Moscowwalks. Воронцово Поле: прогулка по переулкам. URL: https://moscowwalks.ru/2021/04/14/vorontsovo-pole-walk/ (дата обращения: 25.11.2025).
Гилярова Т. В. Воронцово поле. Путеводитель по московским улицам. URL: https://mosstreets.ru/vorontsovo-pole/ (дата обращения: 25.11.2025).
Храмы Таганки. Храм Св. Николая в Подкопаях. URL: https://tagankahram.ru/ (дата обращения: 25.11.2025).
Рожкова А. Дома на Воронцовом поле: история, архитектура, обитатели. URL: https://realty.rbc.ru/news/5f1ae2bb9a79470e07754d0c (дата обращения: 25.11.2025).
Улица Воронцово Поле. Энциклопедия «Москва». URL: https://um.mos.ru/houses/ul-vorontsovo-pole/ (дата обращения: 25.11.2025).
Музей истории Басманного района. Воронцово поле в документах и фотографиях. URL: https://basmanmuseum.ru/vorontsovo_pole/ (дата обращения: 25.11.2025).
Архитектура Москвы. Басманный район. URL: https://archmoscow.ru/architecture/basmanniy/ (дата обращения: 25.11.2025).



